
Pneumatisches Schrägsitzventil (Schweißanschluss und/oder Gewindeanschluss)

• Konstruktionsmerkmale:
1. Kompakte Bauweise und geringes Gewicht.
2. Der Durchfluss ist groß, der Widerstand ist gering und es gibt keinen Wasserschlag.
3. Langlebige, wartungsfreie Abdichtung.
4. Die Dichtfläche ist verschleißfest und die Dichtleistung ist gut.
5. Gutes Öffnen und Schließen.
6. Automatische Korrektur des Ventilschafts, selbstschmierend und wartungsfrei.
7. Der Zylinder kann frei gedreht werden, um die Installation vor Ort zu erleichtern.
• Anwendungsbereich:
Textildruck und -färbung, industrielle Waschanlagen, Wasser- und Stromversorgungssysteme, chemische Industrie, Abwasserbehandlung, petrochemische Industrie usw.
• Technische Daten:
Nennweite: DN 15–50 mm
Anschlussart: Schweißen, Zahnverbindung
Zylinderform: einfachwirkend (Federrückstellung)
Maximaler Betriebsdruck: 0–16 bar
Mittlere Temperatur: -10 °C bis +220 °C
Umgebungstemperatur: -10 °C bis +80 °C
Dichtungsmaterial: PTFE-Weichdichtung
Steuergas: neutrales Gas, Luft
Steuergasdruck: 2,5–6 bar
Steuerfunktion: normal offen
Federbetätigter einfachwirkender Antrieb
Andere Spezialmaterialien oder spezielle Temperaturen können ebenfalls entsprechend den Anforderungen des Kunden ausgewählt werden.
• Werkstoffe der Hauptteile:
Gehäusewerkstoff: Edelstahl AS351 GB/T12230 CF8 CF8M
Spindelwerkstoff: CF8M
Kolben: Kupferlegierung, Aluminiumlegierung
Spule: AS351 GB/T12230 CF8 CF8M
Dichtung: Graphit Teflon EPDM
Antriebsgehäuse: Polyamid
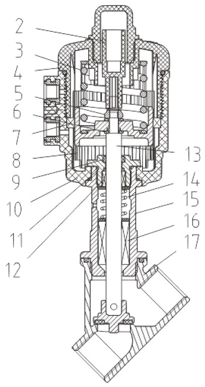
Schnittzeichnung für pneumatisches Schrägsitzventil


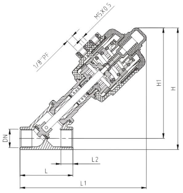
Schematische Darstellung der Hauptabmessungen eines pneumatischen Schrägsitzventils

Hauptmaßtabelle und Einführung in das Teilemodell

Zurück zu der Übersicht der Ventile

|